Gallery

施工事例

  1. TOP
  2. 施工事例
  3. 豊川市 リフォーム W様邸
豊橋ショールーム

豊川市 リフォーム W様邸

種別
戸建住宅
構造
木造
リフォーム箇所
洗面室、その他、中古物件を見つけてリフォームしたい
テーマ
全面改装、間取り変更、中古住宅、増築・減築、断熱・気密、交換、はり替え、修理、リフォーム

Before・After

ビフォー・アフター

Staff

担当スタッフの声

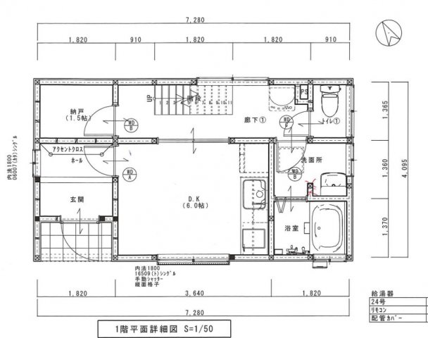
中古住宅をご購入後、リフォームをさせて頂きました。
トイレがあった場所を、洗面所に変更し洗面化粧台を新設致しました。
ご依頼を頂きまして、誠にありがとうございました。
【商品名 LIXIL W600タイプ】 

リフォームをご検討されている方は
お気軽にお問い合わせください。

お電話でのお問い合わせ

Tel. 0532-39-3511

受付時間 / 9:00~18:30

閉じる

スマホの方は電話番号をタップで発信できます。

豊橋ショールーム

0532-39-3511

受付時間 9:00~18:30 定休日 水曜日
来店予約
無料見積
会員登録
電話する電話で今すぐお気軽相談
LINEでお気軽相談LINE相談